※本記事は、株式会社明豊エンタープライズ様からの情報提供で作成しております。
東京23区を中心に200棟を超える“新築1棟投資用賃貸住宅”の供給を行う、株式会社明豊エンタープライズ(東京都目黒区:代表取締役 矢吹 満、以下「当社」)は、国際連合が提唱する「SDGs(持続可能な開発目標)」(※1)に賛同し、持続可能な社会の実現に向けて2024年9月25日に明豊エンタープライズグループとして「SDGs宣言」を策定いたしましたのでお知らせいたします。
目次
SDGs宣言に込めた想い「一生涯のお付き合い」
当社グループは、「企業を通じてよりよい社会を建設しよう」という経営理念の基、住まいと暮らしにおける真の価値を創造し、社会や環境を巡るさまざまな課題解決へ積極的に取り組み、住環境インフラに貢献してまいりました。
今後も「一生涯のお付き合い」という企業精神のもと、ステークホルダーの皆様との信頼と協力を大切にし、地域社会とともに未来を切り拓くロングパートナーであり続けるべく、事業活動を通じて持続可能な社会の実現に貢献してまいります。
明豊エンタープライズグループが目指す3つのテーマ
当社グループは、SDGs達成のため「社員の人生を豊かにする職場環境づくり」「物造りにこだわった、住まいの開発」「パートナーシップの構築と社会・環境課題の解決」の3つをテーマに取り組んでいます。
【取り組み事例】
テーマ1:社員の人生を豊かにする職場環境づくり
・充実した研修制度とPJ(プロジェクト)リーダー制度(※2)の導入による若手の人材育成、生産性の向上。
◇若手の人的資源の生産性を入社後1年で向上させることを企図した研修プログラムの実施。
-
受入研修
入社後1か月間にわたる受入研修。社会人のマナーから当社グループ社員としての必要な知識を身に付けます。
-
専門スキル100日研修
100日間にわたり、各業務の専門スキルを習得する研修。入社2年目の社員が1年目社員を指導するOJT(On-the-Job Training)の併用による実践的な専門スキルを身に付けるプログラムです。
-
PJリーダー研修
PJチーム制の分担による生産性の向上、PJ価値の最大化、お客様目線でのPJ推進を重点項目として研修を実施しています。
-
OJT指導者研修
新入社員・若手社員の制調を促す仕組みと育成環境を整えることを企図し、OJT指導者に対する研修を実施しています。
-
専門教育研修
新入社員、2年目社員を対象に外部講師によるセッションを通じて、対人スキルの強化と商談スキルを身に付けます。
◇全社員に向けた、社員それぞれの仕事の役割・専門性に応じた教育プログラムの実施。
-
管理職研修
経営シミュレーションやDiSC研修を通じて管理職の役割を理解し、リーダーシップ・チームビルディング・後進育成力を習得・実践します。
-
リーダー研修
外部講師によるセッションを通じて、各部門の専門スキル・専門知識を当社グループ全社員のスキル・知識の向上を企図しています。
-
階層別研修
社員全体のビジネスマインドの醸成を目的とし、階層別や全社共通項目、専門スキルの研修を実施することで高度な組織となり、生産性向上による業績拡大を目指しています。
テーマ2:物造りにこだわった、住まいの開発
・新築1棟投資用賃貸マンションシリーズ「EL FARO(エルファーロ)」
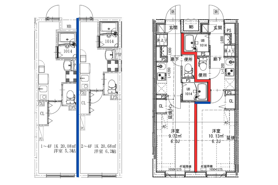
一般的に間口が2.8m未満のマンションの住戸プランでは、間取り構成において水回り・廊下の面積ロスが課題を明豊エンタープライズのオリジナルプランによって、一般的なプランと比較して間取りでは洋室が約0.5畳増し、ロスの削減を実現しました。
・新築1棟投資用賃貸アパートシリーズ「MIJAS(ミハス)」
従来、活用が困難だった不整形地や旗竿地に、鉄骨造の3階建ての長屋を企画・建設することにより土地の有効活用を行っています。
・フルリノベーションによる既存建築物の資源の有効活用、資産価値の最大化を実現
既存の柱、梁を活かして約40畳のリビング・ダイニング空間の実現や全ての開口部のサッシを再利用するなど、既存建築物の資源を有効活用することで、廃棄物を削減しています。

※青色=コンクリート 赤色=乾式耐火遮音壁

テーマ3:パートナーシップの構築と社会・環境課題の解決
・早稲田大学高口研究室との産学共同研究
明豊エンタープライズと早稲田大学高口研究室では産学共同研究を継続的に行っています。2024年9月12日には、日本建築学会が共催する第14回アジアの建築交流国際シンポジウムにおいて、省エネ効果をテーマに「IoT機器による間仕切り及び窓カーテン可動化の省エネルギー効果」について共同研究論文の発表を行いました。本研究は、当社が提供する「EL FARO」で、IoT窓カーテン・IoT間仕切りカーテンの装置有無による冷房・暖房消費電力量と室内の温熱環境の差を検証(夏期 2023年8月5日~2023年9月5日、冬期 2024年1月10日~2024年2月13日)。カーテンの導入による夏季の冷房消費電力量は窓カーテンで15.8%、間仕切りカーテンで最大16.7%、併用した場合は最大30.0%、冬季の暖房電力消費量は窓カーテンで最大6%、間仕切りカーテンの使用で8.3%、併用で最大28%の削減効果があることが明らかとなりました。
これらの研究をもとに今後、IoT機器を開発物件に展開することで、住宅における環境性能や利便性を高めていきます。
・グループ会社を通じた社会課題解決に向けた取り組み
当社グループ会社である株式会社ハウスセゾンエンタープライズ(京都市上京区:代表取締役 奥山秀昭)は、物流問題解決および入居者の利便性向上に向けた「スマート置き配」の導入を推進する他、LUUPポート設置を推進によるマンションの空地活用に取り組んでいます。
・グローバル経済成長の推進
2023年3月、11月に海外投資家向けに台湾で、海外不動産投資セミナーを定期的に実施。2024年11月には台湾に初の現地法人「東京明豐開發股份有限公司」設立を予定しており、台湾をはじめとしたアジア圏を中心に販売チャンネルの拡大・強化を図ることでグローバル経済成長へ寄与していきます。また、当社グループ会社である株式会社明豊プロパティーズ(東京都目黒区:代表取締役 太田 孝)は台湾在住のオーナー様も日本国内の不動産管理・資産管理について安心して不動産投資が行えるよう、台湾在住のオーナー様に向けた賃貸管理サービスを展開しています。
詳細は、当社ホームページのSDGs特設ウェブページをご確認ください。
【SDGs特設ウェブページ】:https://meiho-est.com/sdgs/
(※1)「SDGs -Sustainable Development Goals( 持続可能な開発目標 )」とは:
2001年に策定されたミレニアム開発目標(MDGs)の後継として、2015年9月の国連サミットで採択された「持続可能な開発のための2030アジェンダ」にて記載された2030年までに持続可能でよりよい世界を目指す国際目標です。17のゴール・169のターゲットから構成され、地球上の「誰一人取り残さない(leave no one behind)」ことを誓っています。SDGsは発展途上国のみならず、先進国自身が取り組むユニバーサル(普遍的)なものであり、日本も積極的に取り組んでいます。
【出典】外務省HP:https://www.mofa.go.jp/mofaj/gaiko/oda/sdgs/about/index.html
(※2)PJリーダー制度とは:物件PJごとに開発、設計、販売部門で構成されるチームを組み、入社1年目から先輩社員のサポート受けながら仕入れた物件に開発から設計、販売までを中心となって携わることができる制度。

明豊エンタープライズグループについて
創業56年、物造りにこだわった信頼と実績の東証上場デベロッパーとして、東京23区を中心に200棟を超える“新築1棟投資用賃貸住宅”を供給している株式会社明豊エンタープライズ(東京都目黒区:代表取締役 矢吹 満)を親会社とし、賃貸管理会社の株式会社明豊プロパティーズ(東京都目黒区:代表取締役 太田 孝)、株式会社ハウスセゾンエンタープライズ(京都府京都市:代表取締役 奥山 秀昭)、建設会社の株式会社明豊エンジニアリング(東京都目黒区:代表取締役 阪本 伸司)、株式会社協栄組(東京都世田谷区:代表取締役 五十嵐 一洋)で構成されております。
明豊エンタープライズグループ全体として、一生涯のお付き合いと次世代に受け継ぐ想いを大切にしております。
(参考)明豊エンタープライズグループ体制図


この記事の監修者
吉田宏輝
COCOCOLOREARTH代表、社会活動家。
COCOCOLOREARTHでは、社会課題解決を軸にした就職・転職活動を支援するインタビューメディアの代表として、100人以上の社会活動家にインタビュー、記事執筆やイベント登壇などを行う。